Студия в комплексе “HORIZONT”
- 79,900€
- 1,598€/м2
Описание объекта
- Апартамент
- 1
- 1
- 3
- 50 m²
- 2026
- 3000
Описание
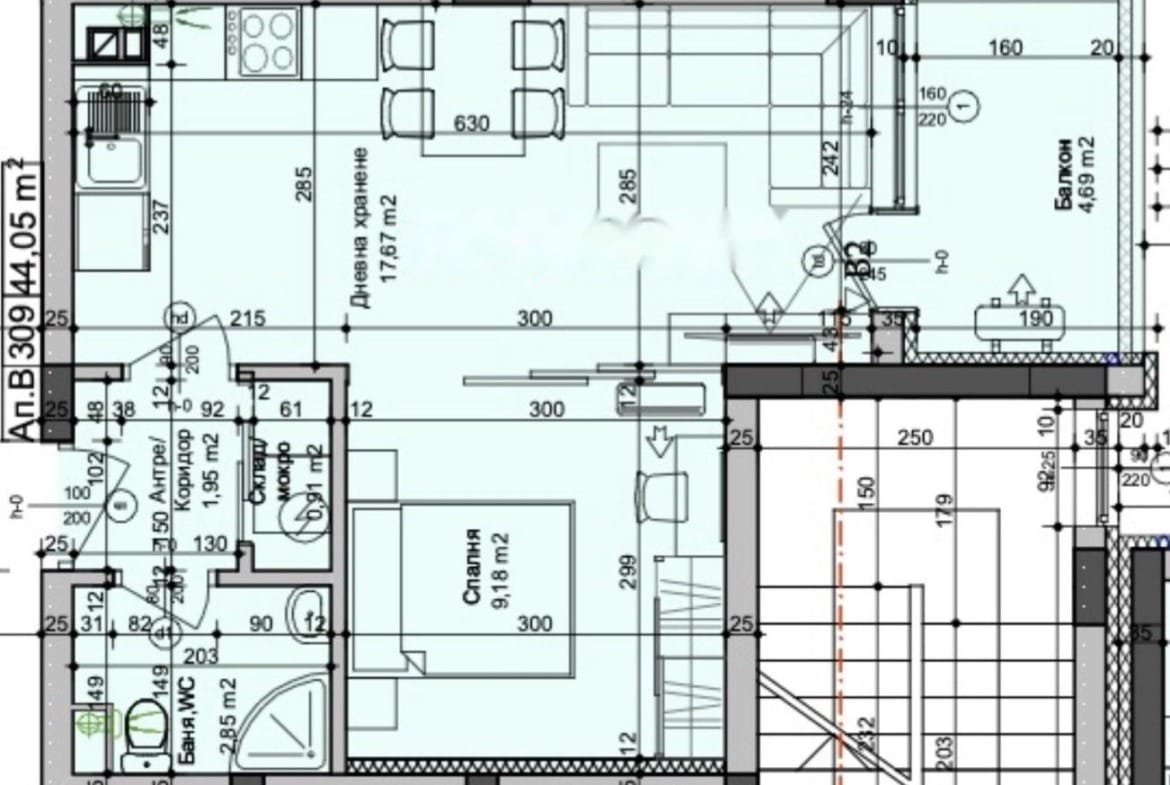
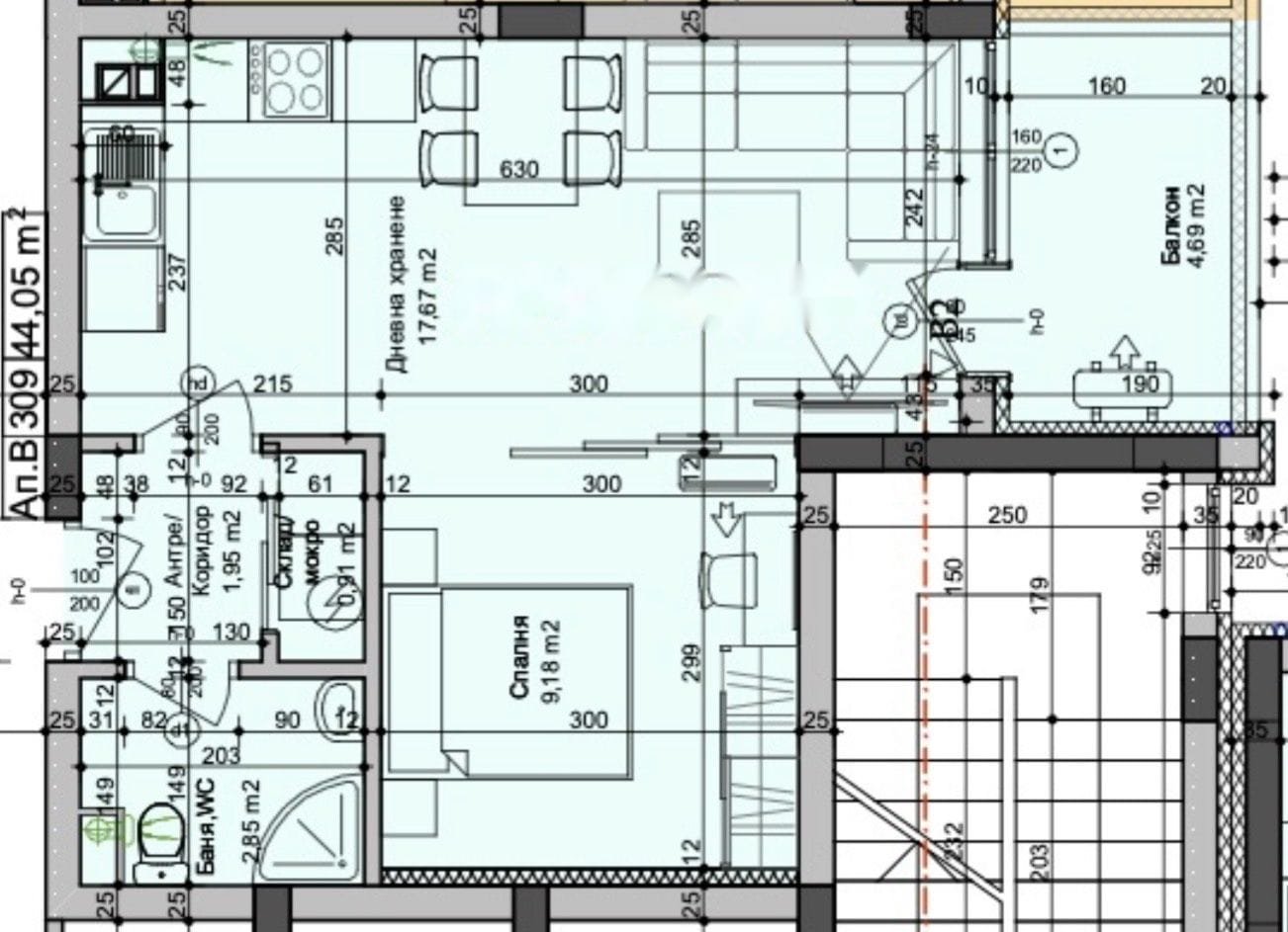
Новая просторная студия (50 м²) в ЖК HORIZONT, Бургас — Прямое предложение от застройщика!
Предлагаем вашему вниманию перспективный объект недвижимости в новом жилом комплексе HORIZONT, расположенном в динамично развивающемся районе Бургаса. Студия площадью 50 м² находится на 3-м этаже и продается напрямую от застройщика на этапе строительства Акт 14.
Это идеальный вариант для тех, кто хочет инвестировать в качественное городское жилье без переплат и самостоятельно реализовать дизайн интерьера «с нуля».
Ключевые преимущества и характеристики:
-
Без таксы поддержки: Огромное преимущество данного объекта — отсутствие ежегодных платежей за обслуживание (таксы поддержки), характерных для курортных комплексов. Вы оплачиваете только фактические расходы по содержанию общих частей дома, что существенно экономит бюджет.
-
Рекордная площадь для студии (50 м²): Благодаря внушительному метражу, данное пространство можно легко трансформировать в двухкомнатную квартиру (open space или с перегородкой), выделив отдельную спальную зону и просторную гостиную с кухней.
-
Этап строительства — Акт 14: Здание уже возведено в конструктивном виде (грубое строительство). Это гарантирует соблюдение сроков и позволяет вам планировать ремонтные работы в ближайшем будущем.
-
Состояние «Черновая отделка» (БДС): Студия продается без мебели и отделки. Это «чистый холст» для воплощения ваших идей: вы сами выбираете качество материалов, цвета и планировку сантехники, не переплачивая за чужой ремонт.
-
Комфортный 3-й этаж: Оптимальная высота для городского проживания — удобно подниматься, при этом сохраняется приватность и хороший уровень естественного освещения. В здании предусмотрен современный бесшумный лифт.
-
Современные технологии: Застройщик использует высококачественные строительные материалы, обеспечивающие отличную тепло- и шумоизоляцию, что крайне важно для комфортной жизни в городе.
Локация и инфраструктура:
ЖК HORIZONT расположен в районе с отличной транспортной доступностью и развитой городской средой. В непосредственной близости находятся:
-
Крупные торговые центры и гипермаркеты.
-
Школы, детские сады и медицинские учреждения.
-
Остановки общественного транспорта.
-
Удобный выезд к морскому парку и пляжам Бургаса.
Студия в ЖК HORIZONT — это надежная инвестиция в новое жилье от застройщика. Большая площадь, отсутствие таксы поддержки и возможность сделать ремонт под себя делают этот объект одним из лучших предложений на рынке недвижимости Бургаса в 2026 году.
Свяжитесь с нами для получения актуальных планировок, цен и организации осмотра на объекте!
Адрес
Открыть на Google Картах-
Адрес: 8008 Бургас, Болгария
-
Город: Бургас
-
Область: Область Бургас
-
Индекс: 8008
-
Район: Хоризонт
-
Страна: Болгария
Детали
Обновлено 14 апреля, 2026 в 9:48 пп-
ID объекта 33241
-
Цена 79,900€
-
Площадь 50 m²
-
Спальня 1
-
Комната 1
-
Ванная 1
-
Год постройки 2026
-
Тип недвижимости Апартамент
-
Статус объекта Покупка
-
Этаж 3
-
Расстояние до моря 3000



